铸铁镶铜闸门用途、结构、安装、选用、保养说明书!
永嘉县瓯北双金阀门有限公司17年专业从事套筒阀、铸铁镶铜闸门、渠道闸门、配水闸阀等产品开发、生产、销售为一体的企业。
选择我们:1、质量先行 2、价格合理 3、交货快捷。
关于服务:提供全套工程阀门解决方案,铸铁镶铜闸门售前、售中、售后专业服务。
服务热线:13868378818 曹经理
铸铁镶铜闸门详细说明书
一.概述及用途:
铸铁镶铜闸门是永嘉县瓯北双金阀门有限公司吸收国内外先进结构和工艺,而进行设计改进的一种给排水和污水处理的理想设备。本闸门的制造加工符合建设部CJ/T300-1992标准和美国AWWA标准。
广泛应用于市政、石油、化工、电站、冶金、煤碳、轻工、食品、制药、水利、污水处理等给排水工程中。对公称压力为0.1Mpa以下的用在管道口和交汇窖井、泥沙地、污水渠道、原站井水口、清水池等,用以截止、疏通水流或调节水位。并可与手动、电动、液动启闭机组合配套使用,实现现场操作或远距离集中控制,还可与微机联动控制。

二.结构特点:
本闸门是由门框、闸板、导轨、密封条、可调整密封机构等部件组成。本闸门具有结构简单,密封性好、耐磨性强、操作简单、安装方便,使用寿命长、规格齐全、适应性广等特点。
三.闸门主要技术参数:

注:水头超过10m的闸门需另外注明
四.主要零件材料
零件名称材料
门框、闸板、Ht200
螺杆1Cr18,2Cr13,Ni9Ti13,.304,316
密封面Zcu8-2-2
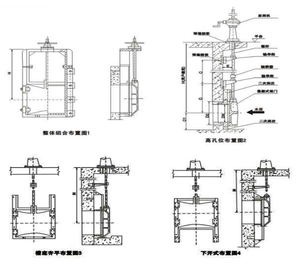
五.安装形式:

六.启闭机与闸门布置:
注:1、水头(H)指最高水位至闸门底部高度;
2、以上表中启闭力为承受正压力状态下;
3、表中吨位已含闸板自重,不含予启力;
4、预气力大小与闸门的块数量,斜度及加工精度有关,一般为开启力的60%~100%;
5、选用启闭机的力一般取1.6~2倍的开启力;
6、其它规格闸门的启闭力根据承压力面积参考本表取近似值。
七.安装事宜:
1、安装前,要首先检查竖框与横框之间、闸板与闸板之间(指多块闸板组合的闸门)的连接螺丝,是否在运输装卸中引起松动,它们的接茬是否错牙,要调整成一个平面,检查闸板与闸槽的间隙,保证闸槽与闸板的间隙不大于0.08mm,如有间隙可以调节闭紧装置。上紧各连接螺栓。
2、安装时闸门整体竖入预留槽,在两边立框的下面垫上调整垫(严禁垫下横梁),两立框用手动葫芦和斜拉立稳,将闸门找直找平,各地脚孔内串上地脚螺栓,调节好闸门的位置,支好模板进行二期浇注。
3、浇注混凝土时,流进闸板、闸框、斜铁、挡板间的灰浆应彻底清除,以防止灰浆凝固后影响闸门启闭。
4、清除加固物。闸门出厂前,为使闸板、闸框贴合紧凑,安装后减少间隙,2m以上的闸门在上下框上安装了4-6个紧闭装置压铁,注意在间隙调整后,闭紧压铁拆除,以便闸门启闭。
5、按预埋图中的要求预留闸门及启闭机安装位置;
6、用吊铅锤直线方法预埋预埋件,保证其表面和垂直度为1.5~3‰范围内;
7、用螺栓将门框、导轨固定在预埋件上;
8、当螺杆细长比(提升杆长度/螺杆外径)4H/d>200时应设置轴导架,轴导架距闸门吊耳距离应大于闸门最大开启度。
八.选用须知:
1、选用闸门时应注明H值(闸门中心至启闭机底部平台高度);
2、启闭机应根据表中启闭力及自动化程度确定,具体可参考启闭机样本。
3、平台设计负荷应考虑正反双向承受(关闭力参考开启力)。
4、轴导架是根据井深不同而设定的,设计时应与联轴器不干涉;
5、工作时整条螺杆,联轴器、闸板都做上下移动为明杆闸门,工作是螺杆不移动,闸板上下移动称为暗杆闸门。
6、方向承压闸门应选用时应注明,正向承压闸门当用于随受么向水压时,水头应<2.5m;
7、暗杆闸门宜装于风景区或道路中间的窖井内,此种闸门自带开启装置,不需专用启闭机;
8、订货时应注明H,并注明单独闸门(与配套启闭机)的具体名称、型号、规格;
9、本厂可承制其它材料(不锈钢、碳钢、铝合金、塑料)或特殊形工闸门;
10、本厂供货不含任何预埋件,所以闸门布置参照上页;
11、本厂所提供样本如有修订不另行通知。
九:闸门的使用以及保养
1、闸门应注意闸板的上、下极限位置,不能超限,以免损坏闸门或启闭机。
2、闸门在起闭过程中如有异常情况应立即停止使用,及时检查修理。
3、闸门在关闭时距闸底10公分处,暂停2分钟,让激流冲净底门槽内杂物,然后再将闸门关闭。
螺杆式启闭机
1、一定要保持基础布置平面水平180o;启闭机底座与基础布置平面的接触面积要达到90%以上;螺杆轴线要垂直闸台上衡量的水平面;要与闸板吊耳孔文和垂直,避免螺杆倾斜,造成局部受力而损坏机件。
2、将启闭机置于安装位置。把一个限位盘套在螺杆上,将螺杆从横梁的下部旋入启闭机,当螺杆从启闭机上方露出后,再套上限位盘。螺杆的下方与闸门连接。
3、启闭机的基础建筑物安装必须稳固安全。机座和基础构件的混凝土,按图纸的规定浇筑,在混凝土强度未达到设计强度时,不准拆除和改变启闭机的临时支撑,更不得进行试调和试运转。
4、安装启闭机根据闸门起吊中心线,找正中心使纵横向中心线偏差不超过正负3mm,高程偏差不超过正负5mm。然后浇注二期混凝土或与预埋钢板连接。
5、起闭机电气设备的安装,符合图纸及说明书的规定,全部电气设备均可靠的接地。
6、每台起闭机安装完毕,对启闭机进行清理,补修已损坏的保护油漆,灌注润滑脂。
十:启闭机调试
1、在无荷载的情况下,保证三相电流不平衡不超过正负10%,并测出电流值。
2、上下限位的调节:当闸门处于全闭的状态时,将上限压紧上行程开关并固定在螺杆上。当闸门处于全开时,将下限位盘压紧下行程开关并固定在螺杆上。
3、启闭机的主令控制器调整,必须保证闸门升降到上、下限位时的误差不超过1cm。
4、安装后,一定要作试运行,一作无载荷试验,即让螺杆作两个行程,听其有无异常声响,检测安装是否符合技术要求。二作载荷试验,在额定载荷下,作两个行程,观察螺杆与闸门的运行情况,有无异常现象。确认无误后方可正式运行。
1、操作人员必须掌握启闭机的结构、性能与操作方法,并有一定的机械知识,以确保机器的正常运转。
2、操作前,对起闭机进行全面检查,个部位润滑情况是否良好,螺栓有无松动。电动启闭时检查电源线路是否接通。
3、电动运转时,操作人员不得离开现场,发现问题立即停机。
4、起闭机维修时,必须清除载荷。
5、在使用时,需随时由注油孔注入润滑油,要经常保持足够的润滑油,螺杆要定期清除油垢,涂护新油,以防锈蚀。
浙公网安备 33032402001884号
技术支持:云鼎科技